This is a carousel with a large image above a track of thumbnail images. Select items from the thumbnail track or use the carousel controls on either side of the large image to navigate through the different images.
The Platte | Residence 2122 | New Homes for Sale in Aurora, CO
Single Family Home
$594,990
-
2,122 sq ft
-
4 beds
-
3 baths
-
2 floors
-
2 bays
The Aurora Highlands
3422 N Highlands Creek Parkway,
Aurora, CO 80019
Sales Office Hours
Monday 10:00 AM - 06:00 PM
Tuesday 10:00 AM - 06:00 PM
Wednesday 12:00 PM - 06:00 PM
Thursday 10:00 AM - 06:00 PM
Friday 10:00 AM - 06:00 PM
Saturday 10:00 AM - 06:00 PM
Sunday 11:00 AM - 06:00 PM
Overview
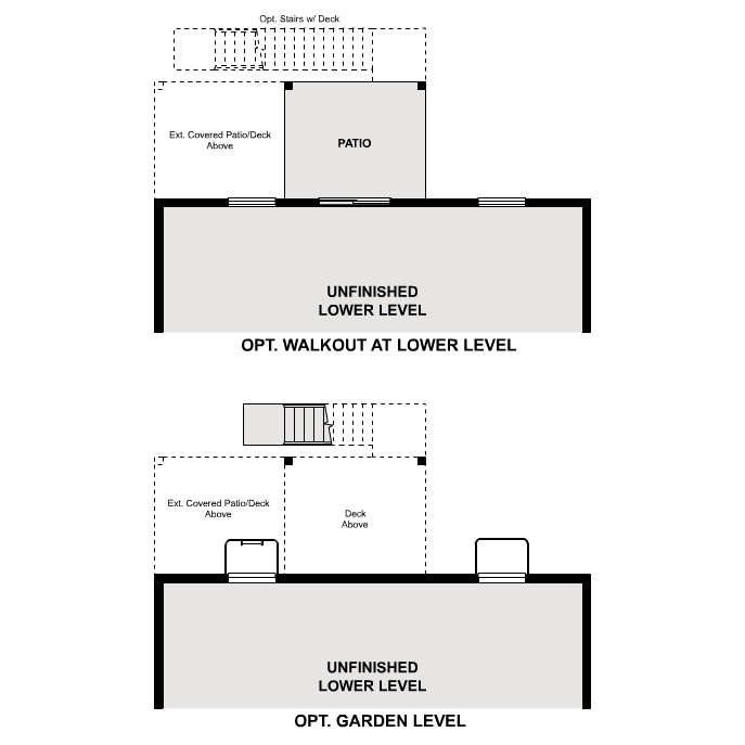
If you’re looking for the perfect blend of space and style, the Platte plan delivers. The main floor features an open, welcoming layout with a bright great room, dining area, and a spacious kitchen complete with a center island and walk-in pantry—ideal for everyday living and entertaining alike. A convenient bedroom and full bath on this level add flexibility for guests or a home office. Upstairs, the peaceful primary suite offers a roomy walk-in closet and private bath, creating a relaxing retreat. Two additional bedrooms and a shared bath complete the upper level. An unfinished lower level provides plenty of opportunity to personalize the space to fit your needs.
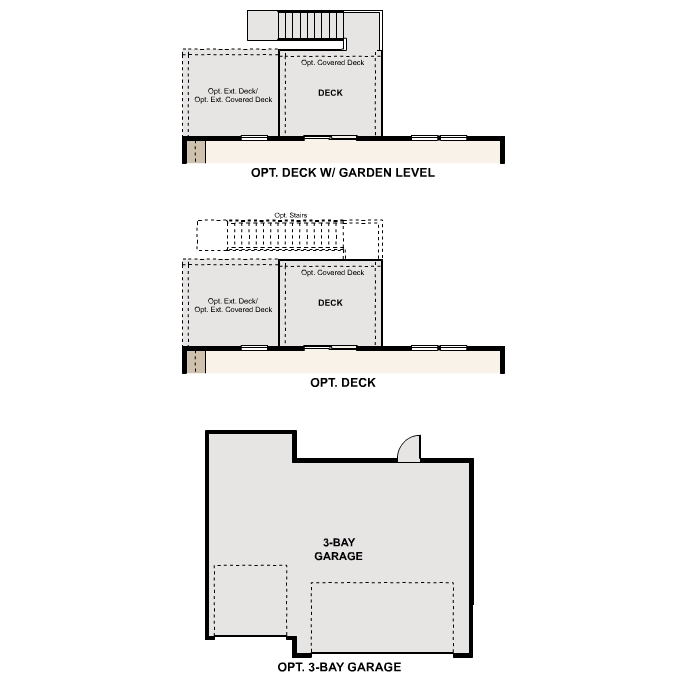
Options Include:
Covered patio or extended covered patio
Walkout at lower level with patio
Garden-level deck
3-bay garage
Floor Plan
Available Homes
Buy online today!
Lock in your dream home through our convenient and completely online Buy Now process.
-
The Platte | Residence 2122
3303 N. Irvington Street | Lot 2103
Est. Completion:
Jun. Move In.Single Family Home
Est. Loading... /mo$649,990-
2,122 sq-ft
-
4 br
-
3 ba
-
2 bays
-
Explore homesites at this community!
Get a feel for the neighborhood and find the right homesite for you.
Community Information
The Aurora Highlands offers a variety of ranch and two-story new construction homes in Aurora, Colorado, ranging from three to four bedrooms and up to 2,433 square feet in size, with optional features like walkout basements on select lots, rear covered patios, and three-bay garages, there are plenty of choices to fit your needs. Residents of the planned community will enjoy a range of resort-style amenities, recreational facilities, and green spaces. Located near E470 and Aurora Highlands Parkway, the community offers easy access to transportation routes and business hubs with a five-minute drive to Denver International Airport and 20 minutes to Downtown Denver and the Denver Tech Center. The Aurora Highlands is a well-designed and convenient community for those looking for new construction homes in Aurora, CO.
Community Amenities
Winged Melody Park (Now Open) features an event stage for live music, a delightful carousel, a colorful playground, and an enchanting garden.
Beach Club (Coming Memorial Day Weekend 2025) offers indoor and outdoor pools, with thrilling amenities and picturesque community views.
Future Ice & Recreation Center (In Planning and Approval Phase) will include a hockey rink, basketball court, climbing wall, and other amenities.
Shopping and Dining
-
Walmart SupercenterAurora, CO 80011Department Store & Grocery
-
King SoopersDenver, CO 80249Grocery Store
-
The Home DepotAurora, CO 80011Home Improvement Store
-
Costco WholesaleDenver, CO 80239Warehouse Store
-
Chick-Fil-AAurora, CO 80011Fast Food Restaurant
-
Green Valley Smokehouse and Oyster BarDenver, CO 80249Restaurant
-
Mondo's PizzaAurora, CO 80011Pizza Restaurant
-
Five GuysAurora, CO 80011Fast Food Restaurant